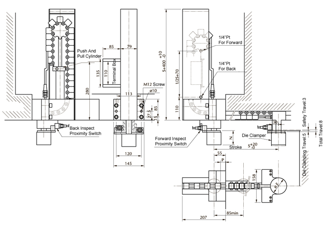
The TAX system uses an automatic pneumatic pressure mechanism to individually clamp upper dies. This system is well suited for both smaller and larger hydraulic presses.
Product Codes

| Clamp | F | N | P |
| TAX-4 | 68 | 68 | 24 |
| TAX-6 | 78 | 73 | 16 |
| TAX-10 | 98 | 79 | 6 |
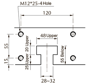
Diagrams
| WIRING DIAGRAM | T-SLOT DIMENSIONS |
![]() |
![]() |


