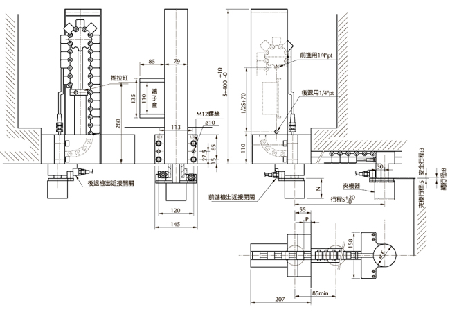
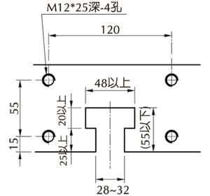
利用气压机构作动,使夹模器独立进行夹持,适合大型油压机上模使用。 夹模器 F N P TAX-4 68 68 24 TAX-6 78 73 16 TAX-10 98 79 6 机台图示 端子盒配电示意图 客户台盘固定孔位及 T 槽尺寸范围 系统解说 TAX 自走式夹模器 TR 旋转夹模器 TS 摇摆夹模器