油压驱动使夹模器摆开换上模具后,即摆入进行夹模。

| 耐压 |
275kgf/cm2 |
| 最大工作压力 |
185kgf/cm2 |
| 使用温度范围 |
-5~60°C |
| 使用油 |
ISO VG32-VG5656 |
| 限動開關型号 |
Z-15G-Q-22B |
| 接點形式 |
Single Pole Double Throw |
| 電壓 |
AC125V,20A
DC 30V,6A6A |
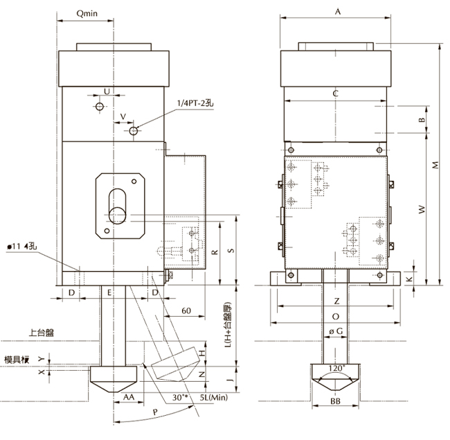
| 型号 |
A |
B |
C |
D |
E |
F |
| TS-4 |
94 |
27.5 |
95 |
22.5 |
50 |
28 |
| TS-6 |
129 |
34.5 |
110 |
25 |
60 |
36 |
| TS-10 |
168 |
35.5 |
150 |
25 |
100 |
44 |
| 型号 |
G |
BB |
Z |
J |
K |
M |
| TS-4 |
28 |
52 |
115 |
28 |
16 |
230 |
| TS-6 |
30 |
60 |
129 |
32 |
20 |
280 |
| TS-10 |
35 |
68 |
168 |
38 |
20 |
348 |
| 型号 |
N |
O |
P |
Q |
R |
S |
| TS-4 |
16 |
135 |
24° |
55 |
55 |
60.5 |
| TS-6 |
18 |
150 |
21° |
70 |
68 |
75 |
| TS-10 |
22 |
190 |
36° |
85 |
93 |
102.5 |
| 型号 |
T |
U |
V |
W |
X |
Y |
| TS-4 |
55 |
15.5 |
19.5 |
143.5 |
5 |
2.5 |
| TS-6 |
70 |
11 |
19 |
178 |
5 |
2.5 |
| TS-10 |
85 |
21 |
29 |
226 |
6 |
3 |
