模具交换方式

台车系统能根据厂房型式:射出成型机的配置,模具置放方式等诸条件的不同个别设计之。因此,若新设立工厂时,初期阶段即与本公司讨论可规划出更理想的 Q.M.C.S 换模系统。


双模具移动台车 ( 上视图 )


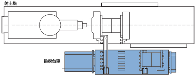
单模具固定台车 ( 上视图 )


双向移动台车 ( 上视图 )

设备相反方向

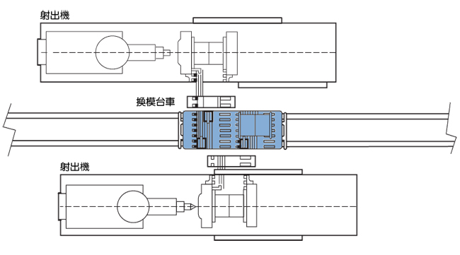
设备同一方向


直列式共享移动台车 ( 上视图 )


富伟首页

公司简介

产品介绍

影片专区

最新消息

参展新讯

电子型录

销售据点

连络我们